当前位置:深圳新闻网首页 > 深圳新闻 > 图片深圳 > 

莲花山公园山顶公厕突然被拆遭吐槽 原址将建新公厕设计图亮了

2018-11-02 21:49来源:深圳新闻网

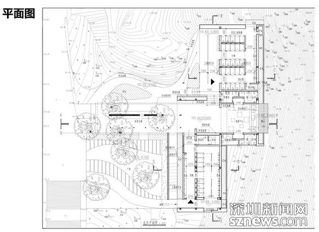
莲花山公园山顶公共厕所原址重建设计平面图(深圳市城管局提供)

记者了解到,原址重建的公厕将在部分男女卫生间厕格设助老设施和折叠婴儿座椅,厕格外设有空置提示灯。母婴室内设有温奶器、护理台,第三卫生间的布置考虑了父亲带女童、母亲带男童及成年子女带行动不便的父母等多层面如厕需求。

公厕建筑层高4.5米,能够较好的保证自然通风、室内采光和视线通透,在满足私密性的前提下引景入室,同时还利用灯光和背景音乐营造厕所优雅静谧的环境和氛围,并采用中水回收装置,提高水资源综合利用水平。休息长廊具有避雨及等候功能,同时设有自动售卖机、手机充电插座、垃圾分类回收、休息座椅等便民设施,东侧设有观景台。

情况说明称,“目前,莲花山公园山顶公厕已移交市建筑工务署负责建设,预计2018年底建成并投入使用。今后将按照高标准管理和维护,为市民游客提供优质服务。”

[责任编辑:郑晓鹏]

新闻评论