


近日,作为深圳教育事业高质量发展的重大部署之一,深圳中学高中园(又称“深汕高中园”)项目初步设计通过专家审查,这是继今年取得用地预审及选址意见书、可行性研究报告批复、规划设计要点后的又一关键性进展。目前,项目勘察、场平单位均已入场并开展工作。由于工期紧张,项目拟于2022年内正式开工建设,力争满足2023年秋季开学使用。

▲可研批复
今年4月,深圳市发展和改革委员会正式批复《深汕高中园项目可行性研究报告》,项目批复总投资32.2亿元。深圳市建筑设计研究总院有限公司以3679.23万元竞得《深汕高中园项目施工图设计》,随即由建设单位区建筑工务署组织设计方孟建民中国工程院院士团队与深圳中学筹备组共同组成的联合工作小组高效联动、挂图作战,召开多场设计专题交流会,优化设计方案,完善各项具体措施。据悉,项目采用“市投区建市管”模式“高效率 高起点 高标准”建设,并严格按照海绵城市要求进行规划、设计,运用BIM模型开展后续报建工作。


左右滑动查看更多
6月16日下午3时,市教育局、深圳中学会同区建筑工务署组织召开深汕高中园项目初步设计专家评审会,市发展改革委、市教育局、区公共事业局、区住建水务局、市规划和自然资源局深汕管理局、市生态环境局深汕管理局、市交通运输局深汕管理局、区建筑工务署、深圳中学等单位代表参加。会议邀请了建筑、结构、电气、给排水、暖通、岩土、造价、教育管理领域10位专家,组成专家组,专家组听取了设计单位对本项目初步设计的汇报及建设单位的补充说明,提出有关意见和建议。
据悉,经专家组及各参会单位共同评议,项目初步设计基本符合有关标准和规范要求,以及相关批复文件规定,基本满足使用方需求,最终审查结论为通过。

值得一提的是,评审会前,6月14日区建筑工务署高中园联合工作小组前往深圳华侨城创意园,在深汕高中园项目高质量人居空间设计专题交流会上,特邀参与过3000万平方米以上住宅研发建造的中国居住研究学者、中国家居图书销量第一作家逯薇老师参与,随后组织设计单位结合考察学习内容对方案进行优化,在探索中寻找高效的“密码”,进一步提升了居住设计品质。
保障万人之需 3所中学独立高效连接,形成5分钟教学生活圈
作为全市四大高中园里规模最大的高中园,深汕高中园项目用地面积30.6万平方米,总建筑面积39.6万平方米,已明确交由深圳中学承办,并正式命名为“深圳中学高中园”。项目选址于深汕特别合作区赤石镇新联村、新城村交界处,西至规划科教大道,东至规划鹏兴大道,北至规划桃园路,南至规划宝安路,东南至规划汇文路。校区地形四山三谷,场地三面环水,杨桃溪自北向南环绕校区,本底优渥风光旖旎,距深汕枢纽仅有1.5公里,举目可及,步行可至,交通内联外达,交通区位十分优越。

据悉,项目初步设计包含建筑及总体效果、结构、给排水、暖通、电气、智能化、人防、消防、建筑节能、绿色建筑、海绵城市、低碳建筑、基坑及边坡支护、概算、装修、景观、标识等17个板块,主要建设内容包括基础工程,地下室和地上建筑土建、装饰及安装工程,道路、绿化、管网等室外配套工程等。

项目可研批复32.2亿元,资金来源为市政府投资,办学规模为3所66班普通高中,学位数为198个班9900个学位,教职工人员843人,项目可保障满足合计10743人同时在校生活学习需求。

▲功能组团

▲5分钟生活圈
深圳中学高中园将新建科技高中、外语高中、实验高中3所寄宿制高级中学,项目采用“共享教学组团+独立教学组团”适应未来发展的功能组织模式,3所高中基本教学、生活、运动功能各自独立又高效连接,公共教学与特色教学于组团中央,可供整个高中园灵活使用,各功能组团布局均衡,形成5分钟教学生活圈。
市投区建市管 3所高中配置逐个看,干货满满与学子们息息相关
项目采用“市投区建市管”模式,据设计校园规划结构由“青藤绿脉、有机生长”舒展通透的空间格局,以及“蓝绿交织的山水环境”开敞聚合多样化的校园空间环境组成。

场地设计依山就势、因地制宜,采用竖向标高及多首层设计,让校园各功能区立体联系,自然通透,筑造自然有机、安全优雅的美丽校园。

其中,多首层设计把校内文化广场、知识花园、青藤大街、运动公园等设施立体串连。
多台地的竖向标高设计自西向东,让科教大道、校前广场、卓越中心、教学区、辅导中心、体育馆、体育场、鹏兴大道、圈仔山形成一条“一”字形天际线。
三层级景观构架和植物设计分区,漫步于高中园,可让广大师生透过叠加景观和自然植被,领略深汕四季变化的慢时光,寓教于乐,寓学于趣。
还有那美丽的安全水岸,不仅视野通透,更起到了物理隔离的作用,让师生在课余,有个适度亲水的好去处。

▲教学楼立面

▲宿舍立面
高中园共享校舍8项配置
设科技创新中心、图书馆,艺术教育中心(艺术社团+实验高中剧场)、体育馆、劳动教育中心、教师宿舍、国际学术交流中心(外语高中报告厅)、公交接驳中心。
科技高中独立校舍8项配置
设教学区-普通教室、专用教室,公共教学区-多功能厅,生活配套区-学生宿舍、师生食堂,体育运动区-体育馆及风雨操场、游泳馆、400米运动场;
实验高中独立校舍6项配置
设教学区-普通教室、专用教室,生活配套区-学生宿舍、师生食堂,体育运动区-风雨操场、400米运动场;
外语高中独立校舍7项配置
设教学区-普通教室、专用教室,生活配套区-学生宿舍、师生食堂,体育运动区-体育馆、游泳馆、400米运动场。

▲建设内容





左右滑动查看更多
食堂方面,设计每个食堂面积4950平方米,根据校方分批就餐的管理模式共计2550人(学生2400人,教师150人)的食堂座位布局方案。

每所高中学生宿舍共420间,共布置床位3344个,满足总人数3300人+3300*1%=3333人的要求;标准层电梯数量8台,约21人/台。


左右滑动查看更多
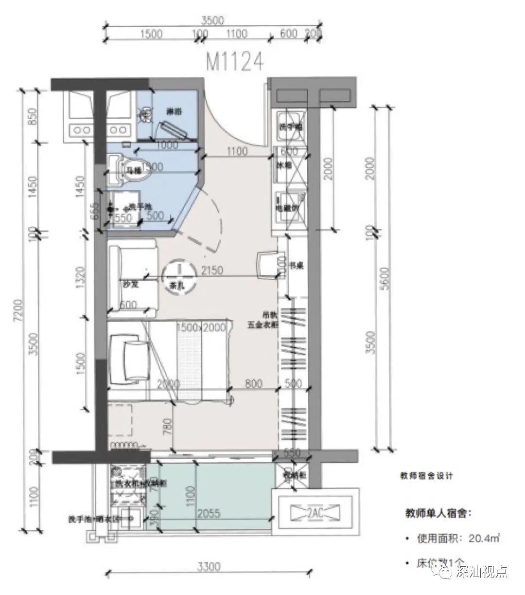
教师宿舍楼3栋,包括540套使用面积21平米的单人间,108套使用面积42平米的双人间。
对于喜欢运动的师生,还有一则建设内容值得关注:
科技高中、外语高中体育馆:篮球/羽毛球馆面积7200平方米,含风雨操场、体育器材室、乒乓球练习室、形体室、武术室;而科技高中、外语高中游泳馆面积960平方米,含6泳道室内泳池。
实验高中体育馆:篮球/羽毛球馆面积3460平方米,含篮球场1片,兼顾12片羽毛球场、2800座看台、体育器材室、休息室;游泳馆面积2360平方米,含8泳道室内恒温恒湿泳池),含游泳池、更衣室、休息室。
出行应有尽有,增设地下停车场及家长就餐区
高中园设定师生主要出行方式有高铁、公交出行,家长私家车接送、校园专线大巴。
针对高中园片区高峰期间4所学校(含相邻的深圳市第二高级中学深汕实验学校)12900人周五同时放学回家,短时间内集疏压力大,实行分年级分时段错峰放学。同时,加强校园巴士运力,鼓励公共交通,倡导集约绿色出行。
▼

▲到达方式
家长接送实行预约与管控并行,结合公交场站设置可独立向家长开放的地下停车区及车位140个(未来根据校方运营灵活管理),沿周边道路设置临时停车位,适度满足家长接送的刚需;

▲公交接驳效果
校巴接驳方面,每校设置10个校巴发车位,采用滚动发车模式进行接驳,20分钟/班次;
据规划设计要点,新建公交首末站2600平方米,公交接驳路线-深汕枢纽站、鲘门站。
同时,在架空层大巴接驳区开通食堂通道,设置对家长开放的就餐区。

“工期紧张开学时间较赶,场地复杂施工难度较大,用地紧张功能组织复杂”区建筑工务署相关负责人表示,深圳中学高中园建设时间紧任务重,项目建成不仅将极大提升区域教学环境,更有助于缓解深圳市公办普通高中学位供需紧张的矛盾,增加教育学位供给。接下来将提升校园基础设施建设水平,推动实现高中教育普及目标,助力民生教育事业高质量发展。

细细数来,深汕特别合作区在经济社会高质量发展的过程中,始终坚持教育优先战略,积极推进含括幼儿园、中小学、高校学位在内的各项教育建设事业提质提速发展,将教育高质量发展的“大图景”,与群众生活的“小确幸”紧密相连,持续加大教育学位供给,着力破解民生难题,补齐民生短板,不断增强市民群众的幸福感、获得感。
未来已来,将至已至,一起为高中园打call!
文、图/ 彭小睿 (晶报)
校核/王岘(区建筑工务署)
深汕特别合作区融媒体中心荣誉出品
(特别鸣谢/区建筑工务署组织设计方孟建民中国工程院院士团队与深圳中学筹备组共同组成的联合工作小组对此文的贡献)

往期 · 精选
一图读懂 | 深汕特别合作区“十四五”规划纲要
安排上了!这些大事要事关系每个深汕人
喜讯 | 深圳港小漠国际物流港正式开港运营
投资250亿!深汕合作区“牵手”比亚迪夯实智造新城基石
喜讯!深圳中学高中园花落深汕
深汕合作区首例整村拆迁!班鱼湖村正式开拆!

