评审现场(朱锐 摄)
深圳新闻网3月14日讯(记者 张玲 通讯员 宋丽 朱锐)“福田新校园行动计划”(以下简称“新校园行动”)之“8+1建筑联展”(以下简称“联展”)自1月31日发布公告之日起,影响力持续传播,建筑师参与热情高涨。日前,“联展”迎来了首批成果。12家入围设计单位克服时间短、任务重、跨春节假期工作等因素,为四所学校(新洲小学、新沙小学、景龙小学、福田机关二幼)带来了一批高质量的设计简案。
(此前相关报道:“福田新校园行动计划”邀顶尖建筑师为8所校园量身设计)
深圳新闻网记者了解到,3月9日-11日,评审委员会在深圳市规土委福田管理局举行了简案评审会议,规土委福田管理局与区教育局等相关政府部门、策展委员会、入围设计单位、代建企业、校方代表参加了本次会议。经审议,评审委员会确定了新沙小学、新洲小学、景龙小学和福田机关二幼四所学校的最终设计单位,并遴选出福田中学项目的六家入围设计单位。
评审委员由策展委员会的六名专家(顾大庆、黄居正、王维仁、朱荣远、朱竞翔、孟岩)担任。在三天的评审会议期间,评委通过现场踏勘和与校方的交流,充分了解了项目背景和使用诉求,并对12份设计简案进行了审议,听取了设计单位的陈述与答疑。
经过充分的讨论和审慎的研究,最终选出四所学校的入选设计单位(名单如下)进行深化设计,并针对每个入选方案提出了深化建议。鉴于项目的时间限制与实施压力,评委们也提请获胜团队广泛听取利益相关方建议,继续深入发展方案,最终完成高品质的设计工作。
评委一致认为,此次设计单位递交的简案深度远超预期,其中涉及到城市策略、教育场所、自然生态、社区融合、空间记忆、低能耗环境等议题,必将对深圳的教育改革、城市发展、社区建设以及设计产业产生深远影响。此次评审会收到的方案反映了中国设计力量的巨大潜能、深圳设计之都的号召力,以及新校园建筑联展组织召集工作的成绩。
本次联展活动主要推动者、规土委福田局副局长周红玫认为,“本次联展超越常规校园项目侧重的工程性,而是进一步探索设计研究和教育理论的关联价值,从而推动整体社会深化教育空间改革,促进社区建设,推广环境意识的和进行其他社会改造的新文化运动,非常具有社会意义”。
福田区教育局局长田洪明表示参加评审会后深受感动,称一直期待建设一所“没有围墙的学校”,如果按照联展的思路来设计福田区未来的学校,与社区相融合,与城市同呼吸,将无疑是一个良性的事情。
新沙学校总务主任陈广表示,“我对我们的方案感觉非常满意,昨天来一看,听了几个专家分析,非常想要这个方案。方案充分利用了里面的空间,有不少学生活动的场所,把实践和娱乐引进了校园,符合我们学校孩子健康成长的理念,另外也回应了我们特色办学的需求”。
首批四所学校(新沙小学、新洲小学、景龙小学、福田机关二幼)简案评审结果
入围设计单位名单如下:
新沙小学:一十一建筑设计(深圳)有限公司
新洲小学:广州市东意建筑设计咨有限公司
景龙小学:北京张永和非常建筑设计事务所有限责任公司
福田机关二幼:施正建筑师设计有限公司(香港)
参会人员合影(朱锐 摄)
评审会议同时进行了福田中学的报名设计单位资格预审。截至3月6日报名期限为止,福田中学项目共吸引来自北京、上海、深圳、香港、台湾、纽约等地的56家设计单位的报名。
作为本次联展所有参与校园的“高密度之王”,福田中学所带来的设计挑战不言而喻。评审委员会经过多方面考量,从报名设计单位中精挑细选出6家入围设计单位和3家备选设计单位,它们将于3月30-31日第二次评审会议上提交自己的设计简案。
福田中学报名设计单位资格预审结果
入围设计单位名单如下(排名不分先后):
9号 朱涛建筑设计(深圳)有限公司 + 悉地国际设计顾问(深圳)有限公司(联合体)
33号 北京张永和非常建筑设计事务所有限责任公司
43号 上海高目建筑设计咨询有限公司
46号 北京联合维思平建筑设计事务所有限公司
48号 Bade Stageberg Cox(纽约)
57号 北京科罗思邦建筑设计咨询有限公司
备选设计单位名单如下(排名分先后):
备选一 27号 深圳大学建筑设计研究院有限公司
备选二 5号 苏州九城都市建筑设计有限公司
备选三 49号 北京临界空间建筑设计咨询有限公司
踏勘现场(朱锐 摄)
评审现场(朱锐 摄)
附:新沙小学、新洲小学、景龙小学、福田机关二幼入围简案简介
【新沙小学:一十一建筑设计(深圳)有限公司】
新沙小学的设计理念基于最大程度将校园开放给城市。一组裙楼重新定义城市界面,同时避免使用围墙;
S形塔楼自然围合出两个院子,一个面向操场,一个面向城市;
建筑师将学校的公共空间定义为不同主题的游乐场,通过动态的建筑材料贴合儿童的使用需求,并使每一个主题都结合了建筑和教学的功能。
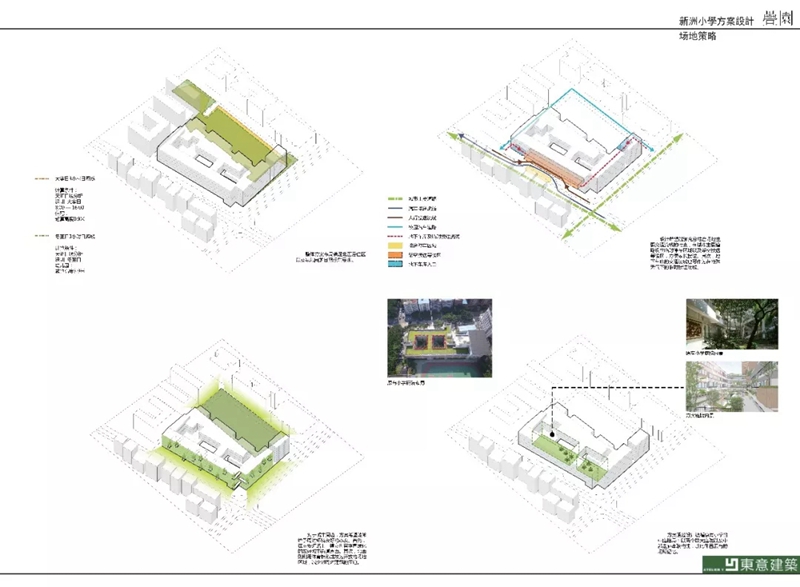
【新洲小学:广州市东意建筑设计咨有限公司】
东意建筑的设计方案基于对原有住宅、幼儿园的间距、日照以及邻里关系的尊重和提升,对《任务书》以及校方需求的容量做了最大限度的扩容;
同时在校园环境的设计上采取立体化策略,形成一系列的活动和绿化空间;在社区关系上提倡有限度的共享,重新思考空间管理模式,以应对不断变化的发展需求和教育模式。
【景龙小学:北京张永和非常建筑设计事务所有限责任公司】
非常建筑的景龙小学设计提案采用了手指状布局,其中三个指状部分朝向城市,两个朝向操场及西侧山丘;
丰富的垂直绿化响应了深圳的气候特色;在空间上,从最基本的教室单元入手,通过家具墙的灵活可变以及宽敞的走廊创造出丰富的交流空间;
结构上,使用无梁楼盖和圆柱,提升了空间品质;材料上,除朴素的混凝土外,采用竹钢完成家具墙,进一步提供了近人的舒适尺度和触感。
【福田机关二幼:施正建筑师设计有限公司(香港)】
福田机关二幼的设计提案因地制宜,始终遵循低矮的体量、丰富的绿化植被、空间简单而不失丰富的原则;
建筑师考虑如何通过建筑改善城市问题,用地四角向内退让,释放出空间,提升了周边城市公共空间的质量;
为了凸显自然、消隐建筑,建筑师避免对建筑立面做过于复杂的处理,通过对镂空砖墙的肌理变化塑造丰富的光影效果;
内部通过不同高度的平台、坡道与功能空间,联系了不同楼层的教室与屋顶活动场地,同时把内院分割成尺度、功能不同的院落空间。


顶尖设计师介入 福田4所学校新校园将更新你对校园的认知












