Best of Best!龙华一学校斩获国际设计大奖
2021-09-13 18:32 来源:深圳龙华融媒发布

喜讯!龙华教育建筑斩获设计大奖!
近日
ICONIC AWARDS
(德国标志性设计奖)
公布2021年度获奖名单
龙华区教育科学研究院附属实验学校
摘得最高荣誉
即Innovative Architecture-Best of Best
创新建筑-至尊奖

▲建筑外观
此前,该项目已获得
2021Architizer A+ Award 细节类
建筑+立面特别提名

接连斩获两项国际设计大奖
凭的是啥?
下面就和发布君一起走进这所学校
看看它有怎样的魅力和实力
龙华区教育科学研
究院附属实验学校
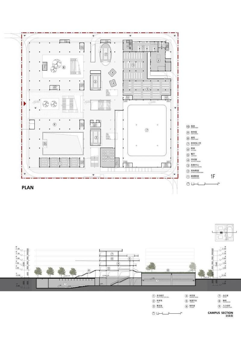
规划布局
项目首先面对的,是有限的空间资源与不断增长的空间需求的挑战。场地西侧紧邻城市主干道龙华大道,其它三面都被高密度的城市空间包围。
项目打破常规的空间逻辑,对功能进行分区设计,以中部的资源中心为核心,串联起教学区、运动场、宿舍区,不同空间相互串联、互动,从而打破了传统廊道式的剖面空间关系,是校园的活力中心。


▲整体鸟瞰
教学区采用单廊式布局,高效而实用;其他教学辅助用房采用更为灵活的布置方式,流线自由,体验更为有趣;资源中心利用挑台和房间之间的错动创造了更多的公共空间,方案以这样的组织方式,创造出复合、高效的校园空间。

▲剖面手绘图

▲轴测图
在深圳的气候条件下,传统的校园空间存在诸多不适,常年的夏季日晒以及频繁的暴雨台风都是难以解决和必须面对的问题。
设计构思重点在剖面维度展开,在建筑东侧布置层叠退台,建筑西侧采用格构式设计最大化遮阳效果,通过被动式的绿色建筑策略回应对岭南地域建筑的理解。

▲层叠退台
空间形态
建筑面向操场的一侧(东侧),采用“书山叠翠”的设计意向,将资源中心部分设计成层层退台的形式,彻底解决了高楼层学生的课余活动空间不足的问题。
退台处根据学校教学时间线,分析整理出资源中心的故事线,形成了丰富的空间形态;边界层层变化,互相呼应,流动活泼;退台边缘种植葱郁的绿色植物,营造绿意盎然的自然书院形象。
建筑师希望学校里千人千面,无论人和建筑都充满不同。

▲东立面

▲层层退台形成丰富的空间局面

▲退台边缘种植葱郁的绿色植物绿色
立面语言
建筑在靠近城市主干道一侧是学校(西侧),运用简洁的格构式语言,建立基本的形态秩序,再通过随意布置的彩色洞口形成学校观看城市的窗口,为学生创造了多彩的活动空间,凸显自由开放的教育理念,同时也化解了格构带来的厚重感。

▲西立面



▲局部立面
像乐高一样的装配式设计,暗藏着简单明快的设计逻辑,同时在这个设计中PC构件不再是简单重复,韵律感、力量感,贯穿始终。

▲内庭院

▲共享大厅

▲教学区
项目图纸

再次祝贺
项目设计团队夺得殊荣!
如此优秀的学校
真让人心向往之~
如果你也喜欢这所学校的话
别忘了还在进行的
2017-2021年龙华区教育建筑建设成果展
最美三所校园有奖投票活动哦
赶快前往下方二维码
一起为它点赞投票吧!

长按识别二维码进入投票页面
奖项小科普
▲关于ICONIC AWARDS(标志性设计奖)
作为德国殿堂级荣誉舞台的奖项,由德国品牌设计委员会(German Design Council)创办于1953年,共设置建筑、室内、产品、传达及概念五大参赛类别,以涵盖全建筑设计领域的包容性及对交互性的重视而著称。
奖项继承了德式严谨基因,致力于推广跨学科对话,向国际公众传达建筑设计的重要性,尤其表彰具有前瞻性、创新性和富有远见卓识的优秀作品。
▲关于Architizer A+ Awards
A+ Awards是全球最具影响力最大型的奖项之一,由超700万用户的全球建筑界顶流媒体Architizer,创办于2013年。该奖项旨在鼓励设计师们协作与跨界,大胆创新,颠覆陈规,提供具有范本意义的实践经验。2021A+ Awards嘉奖“为不断变化的世界而设计”的建筑作品。
据官方数据,今年累计收到全球100余个国家与地区,总计超5000份参赛作品,每个类别仅前5%将获得荣誉。
● 完整项目信息
项目名称:龙华区教育科学研究院附属实验学校
项目类型:教育类项目
项目地点:龙华区民治街道龙华大道与民兴路交汇处
占地面积:20400平方米
建筑面积:48000平方米
设计时间:2018年
竣工时间:2020年
建设单位: 深圳市龙华区政府投资工程项目前期工作管理中心(轨道交通建设管理中心)、深圳市龙华区建筑工务署
代建单位:深圳市万科发展有限公司
设计单位: 华阳国际设计集团
摄影师:白羽
内容来源 | 龙华前期和轨道在线(公众号)
编辑 | 曾家祺 杨维易
责编 | 陶倩
审核 | 李世钊
统筹制作 | 深圳市龙华区融媒体中心
转载请注明以上信息




龙华区第二次党代会报告征求意见座谈会召开

深圳北站出发!赣深高铁通车在即

龙华这些路巷变了变了!小细节里藏着大情怀 | 我为群众办实事



