双年展创办于2005年,2007年邀请香港共同举办,更名为“深港城市建筑双城双年展”(英文简称“UABB”),是全球首个以城市和城市化为固定主题的国际双年展,至今已成功举办八届。第九届深港城市建筑双城双年展(深圳)以“城市生息”(Urban Cosmologies)为主题,重点关注城市“双碳”目标下的可持续、绿色、生态发展,着眼于全球气候变化背景下的城市应对策略。本届主展场位于深圳市罗湖区粤海城·金啤坊(原金威啤酒厂),并首次在深汕特别合作区设立分展场。
深汕分展场活动将于
2022年12月17日正式开幕
它以双年展为窗口展示田园都市新理念、
产城乡融合发展新思路、
深汕打造新型城镇化
和乡村全面振兴示范样板新探索

深汕特别合作区作为深圳唯一拥有乡村经济和田园景象的地区,积极探索新的田园都市理念、寻找新的城乡融合发展路径,它是实践城乡融合发展的最前沿,也是展示中国式都市主义的最佳窗口。深汕特别合作区分展场展览将以“C.A.N 灿”(文化、农业、自然)为主题,以“城市之前”为展览宣言, 提出自然主义和都市主义共存的讨论。从田园都市和都市田园双向角度出发,以生态、生产、生活为投射面,展示和探讨深圳城市实践的多种可能性。

本次深汕特别合作区提出“1+N”的布展设计思路,通过多个不同特色和不同主题的展点组合呈现出深汕的全景。其中新厝林分展场位于具有300多年历史的新厝林古寨,也是深汕特别合作区保留最为完整的古寨之一。本次展览通过“历史到未来”的概念,以“过去到未来”的时间线索展示深汕“城市之前,成为城市”的历史发展和规划愿景。在充分体验古寨风情和乡村风貌的同时,了解深汕的文化传承、自然风貌、总体规划,并发起对深汕未来的畅想。本次深汕分展场得到深汕企业的大力支持,共同打造了除新厝林之外的四个分展点,包含深汕湾科技城、深汕西会展中心、深汕城市展厅以及深汕田园创客实验室,邀请了五位在规划设计专业具有影响力的策展人,分别从深汕的产业、城市、乡村出发,讲述了深汕产业新城、滨海新区、田园都市的美好愿景,为深汕带来了一场文化盛宴。
新厝林古寨分展场


展览主题:成为城市之前/ Before City Become City
展览地点:新厝林古寨
主策展人:马清运
执行策展:大马设计(深圳)有限公司
以自然主义和人类命运共同体为基础,讨论田园都市和都市田园对深汕特别合作区历史、自然、人文的影响;从生态、生存、生命、生活出发,深度探索田园都市和中国人居的现有表达和未来可能性。
灿(C.A.N.)是文化、农业和自然三个词的英文缩写:文化(Culture)是人与人之间的一种关系的规定,在任何一种经济方式或者关系当中都会有文化的存在;农业(Agrilculture) 是人们用对自然规律的把握,让一片土地产生最可靠的最大的生产力;自然(Nature)是规定所有属性的先决方式。
灿(C.A.N.)着眼于自然的美好与人的善意,是一个寻找文化与自然之间的共生关系的项目,也是一个环境与人类和谐相处的项目。
深汕西会展中心展点


展览主题:造城遇见造车/ City Making meets Car Making
展览地点:深汕西会展中心
主策展人:黄卫东
执行策展:深圳市城市规划设计研究院
以展点所在区域的特殊性为叙事基础,展览围绕 “造城”“造车”“造未来”三条线索,呈现深汕特别合作区的城市发展脉络和世界一流汽车城的未来展望。
从回顾深汕特别合作区十年的城市规划与形态演变的历程开始,到借鉴国际案例的得与失,同时融合本土新能源汽车的发展历程与呈现智造的理念和技术,探讨“造城”与“造车”共同面对的问题和机遇,引发公众对深汕特别合作区打造世界一流汽车城的思考。
(上下滑动查看更多)
深汕湾科技城展点


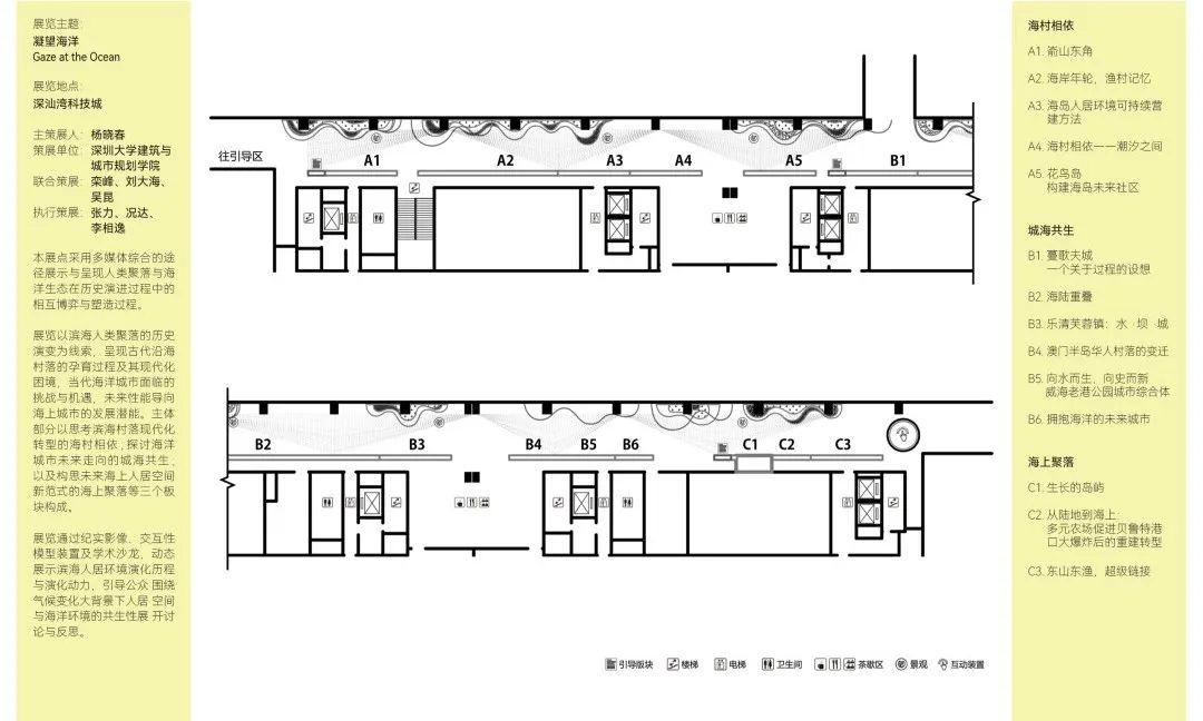
展览主题:凝望海洋 / Gaze at the Ocean
展览地点:深汕湾科技城
主策展人:杨晓春
执行策展:深圳大学建筑与城市规划学院
展点采用多媒体综合的途径展示与呈现人类聚落与海洋生态在历史演进过程中的相互博弈与塑造过程。
展览以滨海人类聚落的历史演变为线索,呈现古代沿海村落的孕育过程及其现代化困境,当代海洋城市面临的挑战与机遇,未来性能导向海上城市的发展潜能。展览以思考滨海村落现代化转型的海村相依,探讨海洋城市未来走向的城海共生,以及构思未来海上人居空间新范式的海上聚落三个板块构成。
展览通过纪实影像、交互性模型装置及学术沙龙,动态展示滨海人居环境演化历程与演化动力,引导观展公众围绕气候变化大背景下人居空间与海洋环境的共生性展开讨论与反思。
(上下滑动查看更多)
深汕城市展厅展点


展览主题:深圳之后 · 理想人居 / Post-Shenzhen · Ideal Habitation
展览地点:深汕城市展厅
主策展人:朱荣远
执行策展:中国城市规划设计研究院深圳院
展览以 “深圳之后 · 理想人居” 为主题,内容涵盖理想生活环境、理想城市中心、理想公共空间和理想生活方式四大版块。
展览形式是以展板、模型、多媒体与特色活动相结合的方式多元化、立体化、生动化的呈现。深汕城市展厅分展点以深汕特别合作区的特色介绍及理想人居畅享开篇。
一楼展厅重点围绕深汕特别合作区中心区的发展历程与现状建设情况,结合国内外理想人居的样板研究,深入探讨理想生活环境及理想城市中心区的深汕未来图景。
二楼展厅则汇聚了深汕特别合作区成立以来众多优秀的城市规划设计项目,以景观、教育、配套、交通四大篇章展开并生动展示,同时通过两馆建筑设计项目的介绍,以小见大、深入剖析深汕特别合作区中心区的理想公共空间与理想生活方式。
(上下滑动查看更多)
深汕田园创客实验室展点


展览主题:乡村流动展 / Fluxibition®
展览地点:深汕田园创客实验室
主策展人:FARMers®
执行策展:大马设计(深圳)有限公司
FARMlab️® 作为深汕首个田园创客实验室将成为新厝林分展场的平行展场,它将不定期进行和新厝林分展场主题内容相关的展览。由于它是小型的复合空间,进行的展览将是细水长流、大题小做的展览形式。
(上下滑动查看更多)
深汕特别合作区展场信息
展览地址:深圳市深汕特别合作区赤石镇新厝林古村落
交通贴士:乘坐高铁抵达鲘门站后可打车前往(15分钟),或乘坐双年展公共交通专线(35分钟)
展览时间:2022.12.17-2023.02.28,周一至周日9:30-19:30
主办单位:深圳市深汕特别合作区管理委员会
承办单位:深圳市规划和自然资源局深汕管理局
主策展人:马清运
联合策展人:朱荣远、黄卫东、费晓华、杨晓春、罗志航
执行单位:大马设计(深圳)有限公司
支持单位:深圳市深汕湾科技发展有限公司、广东深汕投资控股集团有限公司、深圳深汕特别合作区岭南置业有限公司(排名不分先后)
特别鸣谢:新厝林村委、村民及各参展单位
公众号后台回复
【双年展】
识别二维码
可获取“深汕分展场导览图”

来源/深圳市规划和自然资源局深汕管理局
编辑/吴艳红 孙雯锦
责校/袁承咏
往期 · 精选
一图读懂 | 深汕特别合作区“十四五”规划纲要
安排上了!这些大事要事关系每个深汕人
喜讯 | 深圳港小漠国际物流港正式开港运营
投资250亿!深汕合作区“牵手”比亚迪夯实智造新城基石
喜讯!深圳中学高中园花落深汕
深汕合作区首例整村拆迁!班鱼湖村正式开拆!

