

日前
深圳市深汕特别合作区首个安置区——
南湖碧城(南门湖安置区)
完成一期工程全过程方案设计
确定了房建、户型及配套、公园、
市政道路、景观工程等控制性指标
勘察单位已进场完成初步勘察工作
场平单位将开展场平工作

01
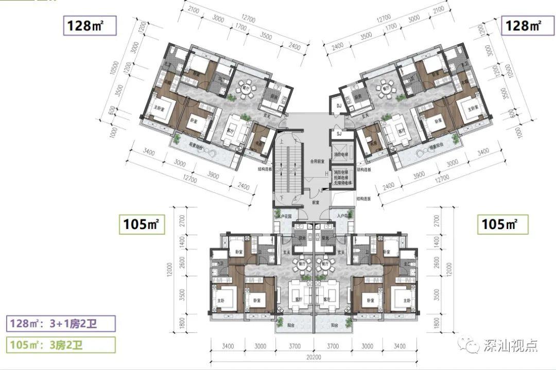
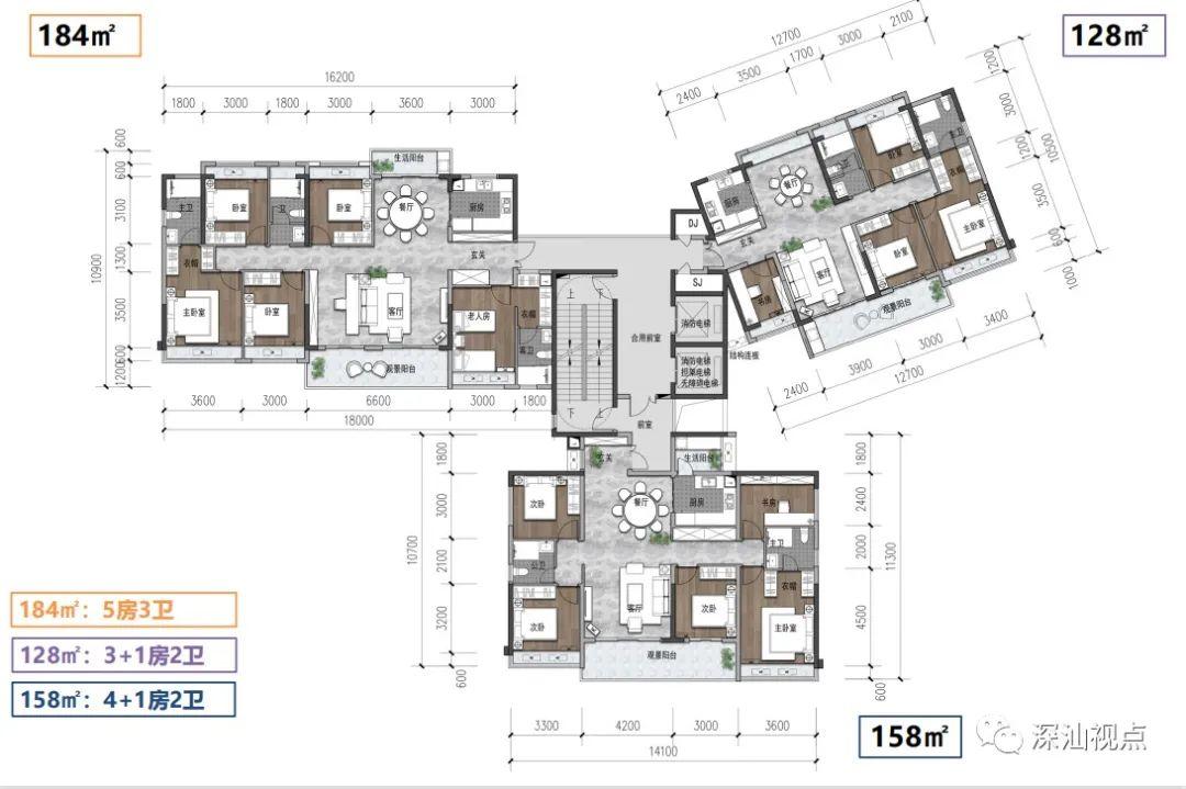
4种户型 配套齐全
充分改善村民居住条件
南湖碧城位于鹅埠片区,分三期建设,一期工程地处深汕大道以南、规划创新大道以西、规划发展大道以北,总用地面积40431平方米,总建筑面积60130平方米,其中住宅43200平方米、商业2000平方米。住宅为四栋塔楼,正南北向布局,总户数320户。包括105平方米、128平方米、158平方米 、184平方米4种户型。


项目周边三面环山,两面临水,北邻鹅公山,南邻南门河,配套商业、学校、住宅、公园等,主要承担西南村、西湖村村民搬迁安置功能,将充分改善村民居住条件。

商业方面,沿住宅南侧设置文化风情商业街,营造地域文化浓厚的商业体验;交通方面,正在规划建设创新大道和发展大道,将成为小区对外联系的主要通道。
02
3大主题 互动社区
传承乡愁记忆
据了解,南湖碧城规划结构及设计理念立足居民需求,结合南门河与鹅埠中心景观鹅山,将打造品质家园、自然花园、人文乐园。
对于日后入住的村民来说,“变”的是:居住环境提升、享受城市配套、生活质量提高;“不变”是:融洽的邻里关系、延续的生活习惯、传承的文化习俗。

“南湖碧城一期的建设,将实现从传统村落、新建村落,到未来社区的蜕变。”区建筑工务署相关负责人表示,项目设置丰富的公共交流空间,打造村落花园,利用“榕树下、水塘边”等景观意象,传承乡愁记忆。同时,结合搬迁村民的生活特点,将架空层作为社区室内与室外的过渡,使之成为村民的社区互动平台。
三大主题
开辟归家生活“第二客厅”
更为每位居民提供全龄化的关怀
☟
✦ 儿童游乐区:守护孩子童趣,亲子活动、四点半学堂、图书阅览;

✦ 运动健康区:激发青年活力,运动健身、直播电竞、家庭聚会;

✦ 长者颐养区:多彩老年生活,棋牌娱乐、品茶休闲、共享餐厅。

(注:以上效果图供参考)
文、图/ 彭小睿 (晶报)
深汕特别合作区融媒体中心报道

往期 · 精选
新年观察|深汕2022:跨越山海 砥砺前行
安排上了!这些大事要事关系每个深汕人
喜讯 | 深圳港小漠国际物流港正式开港运营
投资250亿!深汕合作区“牵手”比亚迪夯实智造新城基石
喜讯!深圳中学高中园花落深汕
深汕合作区首例整村拆迁!班鱼湖村正式开拆!

