近日,上海市人民政府批复《胜瑞电子科技(上海)有限公司“4·22”较大生产经营性火灾事故调查报告》,经胜瑞电子科技(上海)有限公司“4·22”较大生产经营性火灾事故调查组(以下简称:事故调查组)认定,该起事故是一起责任事故。

火灾概况
2021年4月22日13时25分左右,位于金山区林盛路171弄113号的胜瑞电子科技(上海)有限公司阳极氧化车间发生一起火灾事故,过火、烟熏面积约21000平方米,导致8人遇难(含2名消防救援人员)。

火灾原因
经调查认定引发火灾的直接原因是:作业人员黄春生在车间内违章吸烟,引燃周边杂物并扩大成灾。
间接原因是:胜瑞公司日常检查存在弄虚作假现象;防火管理制度形同虚设,管理人员对员工违章吸烟问题失查漏管,车间内长期存在违章吸烟现象;火灾发生后,未按应急预案要求,切断了主厂房除应急照明外的各路电源,导致消防设施未能有效发挥作用。消防控制室工作人员严重失职。消防控制室未落实值班值守制度,仅有一名持证人员上岗;发生火灾时,值班人员未立即确认火灾,未拨打报警电话,未将火灾报警联动控制开关转入自动状态;消防控制室值班记录存在他人代签现象。
8人为何遇难?
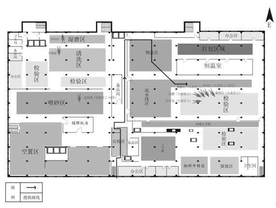
火灾发生时,久奈公司人员正在三楼作业。胜瑞公司员工唐波经过久奈公司作业人员的作业点,告知起火情况。监控录像显示,久奈公司4名人员未作出疏散反应,发现异常后仍在作业点附近徘徊,直至浓烟完全遮蔽监控探头。三楼断电、充烟后,4名被困人员通过对讲机向余向红求救。
火灾扑救期间,胜瑞公司确认492名企业员工全部疏散,无人员被困情况,14时6分,突然反馈有久奈公司4名作业人员被困在三楼,但具体位置不确定。现场消防指挥员先期派出2个搜救组分别从南一门、西一门进入三楼搜索救人,由于烟雾较浓,未能发现被困人员。14时55分许,现场指挥部再次派出由消防救援人员丰晨敏、汤伟佳、史经瑶组成的第3搜救组,由2名熟悉情况的企业人员戚朋涛、余向红引导,由西一门进入三楼搜索救人。15时5分,搜救组报告发现被困昏迷人员并要求增援。现场指挥部派出的第4搜救组随即进入内部增援,并与第3搜救组负责垫后沿途整理发光导向绳的史经瑶汇合。在此期间,现场情况突变,搜救路线附近楼板多处爆裂导致三楼烟热急剧增加,迫使史经瑶与第4搜救组人员只能沿原路返回,并于15时24分许撤离至地面,丰晨敏、汤伟佳、戚朋涛、余向红失联。现场指挥部立即派出多支救援小组搜救。23日5时5分,救援小组在三楼北侧中间偏东位置发现1名被困人员(戚朋涛)。6时5分,救援小组在三楼南侧中部搜索发现5名被困人员(余向红、张鹏、程东务、葛敏红、蔡厚行)。6时10分,救援小组在三楼北侧东部发现丰晨敏、汤伟佳。经现场确认,8人均无生命体征。

对事故责任人员的认定及处理建议
1. 建议移交司法机关处理人员(11人)
(1)黄春生,胜瑞公司阳极车间生产线作业人员,从事车间内半成品及成品的运送。违章吸烟涉嫌引发火灾。对事故发生负有直接责任。
(2)王渭华,胜瑞公司环安部副经理,作为胜瑞公司消防安全的管理负责人,未能切实履行消防安全管理职责,消防安全管理不力。对事故发生负有直接管理责任。
(3)金磊,胜瑞公司环安部职业安全课课长,对作业现场长期存在的火灾隐患疏于管控,得知其负责管理的生产车间有违章吸烟等火灾隐患后,未能引起重视并及时落实整改措施,对事故发生负有直接管理责任。
(4)朱俊,胜瑞公司环安部环保系统课副课长,对作业现场长期存在的火灾隐患疏于管控,得知其负责管理的生产车间有违章吸烟等火灾隐患后,未能引起重视并及时落实整改措施,对事故发生负有直接管理责任。
(5)龙彬圣,胜瑞公司环安部职业安全课助理管理师,协助落实厂区消防安全、火灾隐患排查整改、职工个人安全防护、防火巡查记录等工作。对已发现的火灾隐患及整改意见未落实。对事故发生负有直接管理责任。
(6)程鹏,胜瑞公司环安部职业安全课课员,负责厂区消防工作巡查。日常消防巡查工作不到位,未能及时履职并制止违章吸烟现象。对事故发生负有直接管理责任。
(7)王洋,胜瑞公司总务部助理管理师,负责管理外包保安、绿化等工作。未按合同要求审核外包保安人员资质,明知消防控制室有资质保安存在日常缺岗情况,虚设保安人员应对消防检查,默认无资质人员上岗作业。对事故发生负有直接管理责任。
(8)黄平,金海公司亭林招商主管,未安排符合资质人员从事消防控制室值班工作。对事故发生负有直接管理责任。
(9)王年普,金海公司保安,持有建(构)筑物消防设施操作员4级证书,事故发生当日受金海公司委派,负责胜瑞公司消防控制室值守。严重失职,未按照规定实施消防控制室值班应急程序,应急处置不当。对事故发生负有直接责任。
(10)杨美娟,胜瑞公司总务部后勤服务课课长,未认真审核保安服务承包合同;未按合同要求对外包人员资质进行审核和监督,默认无资质人员上岗作业,将外包事宜转交下属后放任不管。对事故发生负有直接管理责任。
(11)李顺财(台湾),立铠公司环安中心(环安处)协理,未能切实履行消防安全管理职责,消防安全管理不力。对事故发生负有直接管理责任。
2. 建议行政处罚人员(2人)
(12)李斌,胜瑞公司法定代表人。督促、检查本单位消防和安全生产工作不力,未能及时消除火灾隐患。对事故发生负有领导责任。
(13)程晋凯,久奈公司法定代表人。督促、检查本单位安全生产工作不力;未组织制定本单位安全生产规章制度;未组织制定并实施本单位安全生产教育和培训计划。对事故发生负有领导责任。
建议上海市应急管理局对李斌、程晋凯依据相关法律法规给予行政处罚。
3. 建议问责处理人员(6人)
(14)王世敏,中共党员,亭林镇人民政府镇党委副书记、镇长。负责亭林镇政府全面工作。履行消防安全和安全生产职责不力;贯彻落实《金山区安全生产专项整治三年行动实施方案》不到位,推进落实不系统。对事故发生负有领导责任,建议予以问责处理。
(15)杨连杰,中共党员,亭林镇人民政府副镇长,分管镇综合经济、工业、商务、科技、安全、消防等工作。落实消防安全和安全生产责任制不到位;对承担安全监管职能的部门履职考核制度不完善,内部监督不严密;贯彻落实《金山区安全生产专项整治三年行动实施方案》不到位,未督促制定针对厂房仓库消防安全综合治理工作的检查计划,未督促编制问题隐患和整改责任清单。对事故发生负有领导责任,建议予以问责处理。
(16)乔国强,中共党员,亭林镇城市运行综合办公室主任,负责镇应急管理、安全生产、城市运行安全、食品和药品安全管理、重点工作推进等工作。履行消防安全和安全生产职责不力;落实消防安全和安全生产责任制不到位;未针对厂房仓库消防安全综合治理工作制定专门检查计划,未编制问题隐患和整改责任清单;内部监督不严密,对检查人员未依规履职情况失察失管。对事故发生负有管理责任,建议予以问责处理。
(17)姜诚,群众,亭林镇城市运行应急管理中心检查人员。负责东部片区(胜瑞公司所在片区)安全监管工作。安全检查流于形式,未形成闭环。2020年对胜瑞公司开展2次安全检查中,未按规定填写《告知单》,也未进入生产现场进行安全检查。对事故发生负有管理责任,建议予以问责处理。
(18)张铭,中共党员,金山区消防救援支队防火监督二科助理工程师,负责指导亭林镇消防安全工作,未有效履行指导、协调亭林镇开展厂房仓库消防安全综合治理工作,指导辖区内电镀企业开展火灾风险辨识存在不足,检查中未能发现企业未依法设立消防安全责任人。对事故发生负有管理责任,建议予以问责处理。
(19)张阿毛,群众,金山区生态环境局执法大队一中队中队长,承担辖区内生态环境保护执法职责,依法开展生态保护等方面的日常监督检查。在2015年1月至2017年9月期间,对胜瑞公司多次开展现场监督检查,未发现该公司车间内新增的阳极氧化5、6线环境保护设施未经试生产和竣工验收审批、违规投入生产的违法行为,负有监管不到位的责任。对事故发生负有管理责任,建议予以问责处理。
对上述6人问责处理的相关材料移送市纪委监委。
4. 建议企业依据相关规定处理人员(10人)
(20)王运财,胜瑞公司生产中心检包课课长(劳动关系:胜瑞公司),负责对区域内作业人员进行安全培训及巡线工作,检查并制止员工违章行为。未能及时发现并制止作业人员违章吸烟。对事故发生负有管理责任。
(21)李彬,胜瑞公司生产中心阳极一课课长(劳动关系:胜瑞公司),负责阳极一课区域内产线现场的巡查、管理。未能及时发现并消除自动退镀线现场长期存在的火灾隐患。对事故发生负有管理责任。
(22)王应斌,胜瑞公司生产中心阳极部经理(劳动关系:胜瑞公司),负责阳极部区域生产现场的日常管控。未能督促下属管理人员及时发现火灾隐患,发现并制止作业人员违章吸烟。对事故发生负有管理责任。
(23)钟云,胜瑞公司生产中心制造处资深经理(劳动关系:日铭公司),负责包括阳极部在内的多个区域的管理工作。未能有效督促阳极部管理人员履行消防和安全生产管理职责。对事故发生负有管理责任。
(24)黄玉铭(台湾),胜瑞公司副总经理(劳动关系:立铠公司)。对分管产线内各级管理人员履职不力的情况失管失察。对事故发生负有管理责任。
(25)王志印,胜瑞公司生产中心装饰一课班组长(劳动关系:胜瑞公司),事故发生前负责三楼检验流水线改造现场配合工作。未落实胜瑞公司的承包(供应)商进厂作业管理制度。对事故发生负有管理责任。
(26)刘金童,胜瑞公司生产中心检验课课长(劳动关系:胜瑞公司),负责三楼检验流水线管理工作。未督促落实胜瑞公司的承包(供应)商进厂作业管理制度。对事故发生负有管理责任。
(27)吴香香,日沛公司总务部后勤服务课高级管理师(劳动关系:日沛公司),具体承办采购金海公司保安服务承包工作。承办的保安服务承包合同内容违反相关规定。对事故发生负有管理责任。
(28)马丽,日沛公司总务部经理(劳动关系:日沛公司),负责与金海公司签订保安服务承包合同的审核工作。对保安服务承包合同审核把关不严。对事故发生负有管理责任。
(29)刘书宏(台湾),胜瑞公司法务主管(劳动关系:立铠公司),负责与金海公司签订保安服务承包合同的法律审核工作。对保安服务承包合同内容合规性审核把关不严。对事故发生负有管理责任。
建议胜瑞公司及其上级公司对上述10人依据企业管理规定给予处理,处理结果报上海市应急管理局。
完整版事故调查报告,可点击左下角“阅读原文”查看。
1支烟8条命
教训惨痛
各生产经营单位引以为戒
警钟长鸣
end
▌来源:上海市人民政府网站、中国应急管理
▌编辑:深圳应急管理

往期“急”看
没充电也爆燃,现场火光四射!这段监控视频让人后怕……
2021-09-25

深圳3岁女童被锁车内数小时,抢救无效身亡
2021-09-24

疑似啤酒瓶发生爆炸,已致2死3伤
2021-09-23

又是因为它!北京一居民楼发生火灾致5人死亡
2021-09-22




