2021年娱乐圈真是魔幻开年
常常一瓜未平一瓜又起
还有许多明星
以“实际行动”为大家上了
一节又一节的“普法课”

与此同时
随着我国民主法治不断健全
检察院那厚重的实墙、庄严的国徽
早已在人们心中烙下印记
作为法治社会的重要标志
检察院在你心目中是什么印象呢?
是
庄 严
是
神 秘
还是
敬 畏
今天
本鹅就带大家看看
深圳市宝安区人民检察院是如何建设的

深圳市宝安区人民检察院综合业务大楼位于深圳市宝安区建安一路与龙井二路交汇处,总建筑面积27553.64平方米,占地面积8355.76平方米。包括地下室、1栋主楼、1楼副楼、连廊及门卫。其中地下室3层,建筑面积9161.28平方米,地上总建筑面积18392.36平方米。
别看这座大楼看起来“平平无奇”的
然而它可是一位“优等生”哦
不仅在建设和管理上频频获奖
而且有很多做法都值得大家学习
接下来
且听本鹅细细道来
对工程质量不懈追求
从工程建设伊始,市建筑工务署始终把匠心精神贯彻在工程建设的各个环节,实现了桩基工程超声波检测和钻芯检测100%一类桩、装饰装修工程三次获得全署季度质量第一名、2020年度装饰装修工程每季度质量均为前三名。

超声波检测技术是指一种用于检测高等级水泥路面路基状态的最基本的方法。超声波检测技术具有激发容易、检测工艺简单等特点。在道路状态检测中,特别是高等级水泥路面路基检测中的应用有着较广泛的前景。
Ⅰ类桩是合格桩,没有缺陷;
Ⅱ类桩也是合格桩,但有轻微缺陷,不影响结构安全和使用功能(Ⅱ类桩比例不能过大,否则影响验收);
Ⅲ类桩是不合格桩,要返工处理。
深圳市首批建筑废弃物综合利用试点工程
深圳市宝安区人民检察院综合业务大楼项目是深圳市首批建筑废弃物综合利用试点工程,为下一步全市新建项目全面推广使用建筑废弃物综合利用产品起到示范作用。
同时,对提升深圳市建筑废弃物综合利用产品使用率促进循环经济发展,实现绿色深圳、低碳深圳、环保深圳,并最终服务于深圳可持续发展目标的实现提供有力支撑。
全过程采用BIM技术
项目在深化设计、施工进度模拟、施工技术交底等建设过程中采用BIM技术,是深圳市工务署工程管理中心BIM应用示范项目,在“创新杯”、“龙图杯”、“优路杯”、“物联杯”以及“广东省BIM应用大赛”中均有所斩获,是市建筑工务署在BIM类奖项中获奖最全、规模最小的项目。
项目还运用VR技术进行图纸检查、造型优化、材料比选等工作,利用智慧工地、视频监控等信息化手段,将被动管理变为主动智能化管理,构建了一个实时高效的远程智能监管平台。

现有基础下充分利用场地
项目新建建筑容积率较大,且场地内部有保留旧建筑,可建用地较为局促。
在现有基础条件下,方案充分考虑场地周边环境,建筑根据功能要求做成主副两栋楼的布局形式,体量与周边建筑现状尺度相互协调。

将主塔楼放置在场地西南侧,既与现有东侧法院高层以及道路北侧在建超高层错开一定距离,形成良好的城市空间关系。
主副楼之间预留南北贯通的入口广场,在较为局促的场地中营造宽阔舒适的入口仪式空间。

功能流线布置合理
检察院功能要求较为复杂,且仅有单侧临城市道路,还需要满足多类人员需求。
在各个功能流线上,主要工作人员流线通过中心主入口广场组织进入,检务大厅入口独立于场地东侧,车库入口右进右出,分列于建筑的东西两侧。
主副楼之间通过架空连廊连通,各个功能流线分开设置,既相互独立,又能够相互协作。

巧用建筑材料塑造形象
人民检察院在建筑风格上也有着独特的精神诉求。
建筑立面通过竖向线条创造出高耸挺拔的形象感,立面石材坚如磐石,玻璃幕墙简洁透亮,整体建筑立面威严、庄重却不呆板,展示新时代下先锋城市的检察院形象。

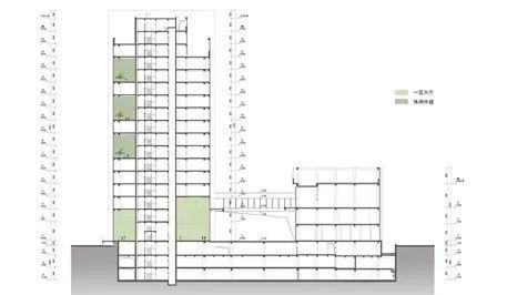
营造不同空间节奏变化
建筑首层均设置通高大堂空间,提升入口体验感。

塔楼本身采用较高效的核心筒及平面布置方式,满足使用功能要求。
中间每三层设置一个两层通高中庭,作为办公人员的日常公共活动空间,建筑在垂直方向营造不同的空间节奏变化。

整体建筑绿色评价达到国家二星级标准
通过一系列节能技术措施,整体建筑绿色评价达到了国家二星级标准。
入口南北贯通的中心庭院能够有效改善场地通风。
场地西侧设计雨水花园,结合中心庭院设置架空地板雨水收集,透水地面等措施,能够控制雨水径流,充分满足海绵城市要求。
主副楼均设计有屋顶花园,有效补偿绿化面积,增加人员的室外活动空间。

目前
项目已完成消防验收
进入室外工程施工等收尾阶段
市建筑工务署将积极协商好使用单位
确保项目顺利移交
END
资料来源:深圳市建筑工务署工程管理中心
编辑:肖思格、刘晖
复核:李森
审核:刘戈
本文由深圳市建筑工务署发布,转载请注明出处。
往期精选

惊艳!深圳这所学校一夜之间火爆网络!

满满都是爱!原来深圳有这么多“儿童专属”……

深圳“工务力量”火速驰援光明“南大门”

专治“六亲不认”!深圳这家医院扩建工程安排上啦


