见圳客户端·深圳新闻网2019年10月21日讯 记者从龙岗发布微信公号获悉,近日,龙岗两个片区城市更新规划(草案)公示啦!分别是宝龙街道南约积谷田和坪地街道冠云片区,涉及这两个片区的公共配套,如幼儿园、公共租赁住房、社区健康服务中心等,一起来看看吧!
宝龙街道南约积谷田更新单元
近日,龙岗区城市更新和土地整备局发布了一则关于《龙岗区宝龙街道南约积谷田更新单元规划修改(草案)》的公示。
项目概况及规划修改内容
本项目位于宝龙街道厦深铁路与高科西路交汇处,具体修改内容如下:
1、一期01-02-01地块
社区健康服务中心建筑面积由600㎡调整为1000㎡,公交首末站5000㎡(含电动车公共充电站)调整为公交首末站4300㎡、公共充电站700㎡,垃圾转运站、公共厕所、再生资源回收站、环卫工人作息站共700㎡调整为小型垃圾转运站480㎡、再生资源回收站100㎡、公共厕所100㎡、环卫工人作息室20㎡,地块计容积率建筑面积由125000㎡调整为125400㎡。
地块机动车出入口位置由丹荷大道调整至规划南宝路,并在积谷田路新增一个幼儿园机动车出入口。

2、二期01-02-02地块
新增的老年人日间照料中心750㎡。地块计容积率建筑面积由76710㎡调整为77460㎡。

3、三期02-02地块
新增公共配套设施750㎡(社区警务室50㎡、社区管理用房300㎡、社区服务中心400㎡)。地块计容积率建筑面积由60900㎡调整为61650㎡。
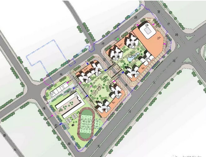
·坪地街道冠云片区城市更新单元
10月15日,龙岗区城市更新和土地整备局发布了一则关于《龙岗区坪地街道冠云片区城市更新单元规划(草案)》的公示。
项目概况
项目位于龙岗区坪地街道,东临现状富坪路,南临现状龙岗大道,西临现状埔仔路,北临规划兴坪路。

拆除范围调整
本次规划结合权属、建筑边界及为打通次干道兴坪路,对拆除范围进行优化,由60999.4平方米调整为69607.9平方米。鉴于本次计划调整属于因更新单元计划制定过程中技术误差和因城市基础设施建设需要导致已批计划拆除范围变化,根据市规划和自然资源局《关于印发<深圳市拆除重建类城市更新单元计划管理规定>的通知》(深规划资源规〔2019〕4号)第三十四条,该更新单元计划内容的调整可与更新单元规划同步申报、审批。

规划技术经济指标
更新单元用地面积为70588.8平方米,拆除范围用地面积69607.9平方米,开发建设用地面积为37861.1平方米,规划容积率7.6,规划容积289240平方米;
其中住宅210360平方米(含公共租赁住房26537平方米),商业、办公及旅馆业建筑67000平方米(含母婴室130平方米),公共配套设施11880平方米(含9班幼儿园2400平方米、占地2950平方米,公交首末站2500平方米,社区健康服务中心1000平方米,社区老年人日间照料中心750平方米,文化活动室1000平方米,社区管理用房300平方米,社区警务室50平方米,便民服务站400平方米,邮政所100平方米,小型垃圾转运站150平方米,再生资源回收站60平方米,公共厕所60平方米,环卫工人作息房10平方米,公共充电站700平方米,党群服务中心650平方米,社区级公共配套用房1750平方米),另配建社区体育活动场地占地面积3000平方米,移交27班九年一贯制学校用地面积13056平方米。
不过需要注意的是,两则公示的更新单元规划仅为草案,最终成果以政府批件为准。
来源|综合龙岗发布微信公号