资讯 | 单身可申请两房两厅!深圳又有安居房来啦!就在地铁旁
2021-12-16 19:20 来源:大芬油画村
深圳今年的安居房真的太给力了
房源来了一波又一波
前阵子还有个粉丝留言说
选到自己喜欢的房源了,回来报喜
烟花每次看到这样的消息真的太开心啦

现在,我们还能延续这份开心
事因深圳又有安居房房源来啦
这次的房源是卓弘星辰花园
配售均价为20322元/㎡
赶紧来看看房源情况以及如何申购

本项目位于深圳市龙岗区横坪路与龙岗大道交汇处,在地铁3号 线永湖站A2出口旁边。

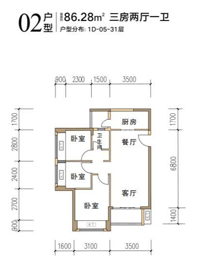
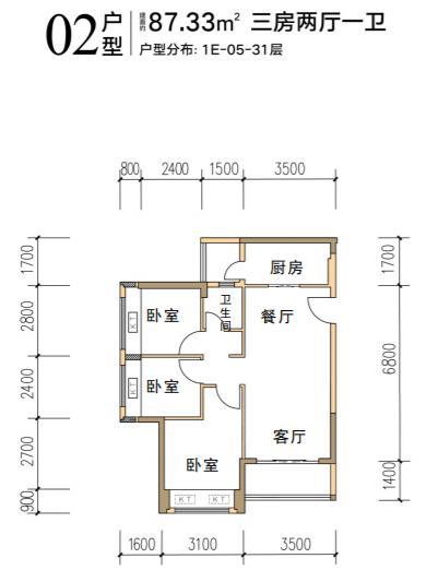
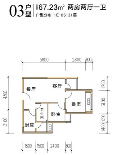
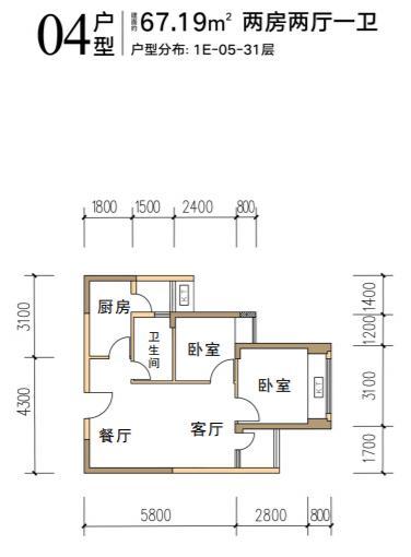
开发建设单位为深圳市卓弘新城实业有限公司,建设监管责任单位为龙岗区住房和建设局,共有安居房房源403套,其中:两房户型房源290套,户型建筑面积约65.2㎡;三房户型房源113套,户型建筑面积约86㎡。

户型图:














配售均价为20322元/㎡(按建筑面积计算)。


以上为价格表的部分内容,由于文章篇幅有限就没有全部截出来,想查看具体价格表可在深圳本地宝回复【星辰】获取。
本项目住宅塔楼为装配式建筑,已竣工验收具备交付入住条件,产权初始登记已完成,配售形式为现售,室内未做精装修,交房标准见样板房。
住房交付标准:


本次安居房的配售对象分为以下两类:
(一)深圳市安居型商品房在册轮候人,在册轮候人名单可查阅深圳市住房和建设局网站“住房保障服务”页面。在深圳本地宝微信对话框发送【星辰】也可查询

图源:摄图网-500564156
(二)符合以下条件的领军人才
1.在本通告发布前经深圳市人力资源和社会保障局认定的领军人才(人才证书在有效期内或人才证书虽不在有效期但期末评估合格);
2.符合安居型商品房申请条件;
3.在本通告发布前向主管部门提交购买安居型商品房申请。

(一)房源安排
1.单身居民及二至三人家庭可认购项目的两房户型;
2.领军人才、四人及以上家庭可认购项目的两房户型或三房户型。
(二)选房队列
根据相关规定,结合本次房源安排及认购家庭(包括在册轮候家庭及领军人才)认购意向,选房队列分为A队列和B队列。A队列指认购两房的选房队列;B队列指认购三房的选房队列。认购人只能选择其中一个队列参与排序并认购相应的房源。

图源:摄图网-300126428
(三)选房排位
第一序位为深圳市领军人才认购家庭
第二序位为按深圳市安居型商品房轮候册排位确定的入围认购家庭
第三序位为按深圳市安居型商品房轮候册排位确定的候补入围认购家庭
第四序位为按深圳市安居型商品房轮候册排位确定的递补认购家庭。
温馨提示:在深圳本地宝微信对话框发送【星辰】即可查看你在轮候库的排名

图源:摄图网-500805946
上述第一序位的领军人才认购家庭,其选房排位排在本次认购的所有轮候家庭之前,领军人才之间的选房排位按照提交安居型商品房申请时间的先后顺序确定。第二、三、四序位中,申请人或共同申请人如属民政部门认定的抚恤定补优抚对象,或为拥有残疾人联合会颁发的有效残疾证的残疾人,其在该序位中有优先选房权利,选房排位依据深圳市安居型商品房轮候册的轮候排序确定。


采取网上在线和现场两种方式看房。因疫情防控需要,提倡有认购意向的家庭采用网上在线看房的方式,了解项目户型及房源信息。
1、网上在线看房
在深圳本地宝微信对话框发送【星辰】即可获取在线看房入口

2、预约现场看房
有意向认购的在册轮候家庭如需现场看房,须通过网上预约。网上预约流程为:进入深圳市住房和建设局网站—>“政务服务”—>“服务主题”—>“住房保障服务”—>“预约看房”提交预约申请。

领军人才可凭本人身份证和安居型商品房申请备案回执直接到项目现场看房。
现场看房分两阶段,具体如下:
第一阶段现场看房时间为2021年12月16日至2021年12月22日,网上提交预约看房的时间为2021年12月15日19:00至2021年12月21日18:00(提交预约申请后须打印回执)。
第二阶段现场看房时间为2021年12月24日至2021年12月30日,网上提交预约看房的时间为2021年12月23日9:00至2021年12月29日18:00(提交预约申请后须打印回执)。已提交网上认购申请且第一阶段未预约看房的家庭,可在此阶段预约看房。

图源:摄图网-401679877
申请人应当按照约定的看房时间前往项目现场看房,每个看房家庭最多可安排2人现场看房。现场看房的人员应佩戴口罩、勤洗手,保持社交距离,做好个人防护,配合做好健康监测。进入看房现场的所有看房人员健康码和行程码需为绿码,方可进入看房现场。

网上认购时间:2021年12月16日09:00至2021年12月22日18:00。2021年12月22日18:00前未完成网上认购的,视为放弃认购。
有意申购的认购家庭,应进入深圳市住房和建设局网站—>“政务服务”—>“服务主题”—>“住房保障服务”—> “认购申请”提交认购申请,并可在线打印《深圳市安居型商品房认购申请回执》。

在册轮候的领军人才未提交人才证书等相关证明文件的,应当在网上认购截止日前,到深圳市住房保障署补交。
认购家庭需调整认购意向的,应当于2021年12月22日18:00前,登录深圳市住房和建设局网站自行变更,逾期不予调整。
已签订其它安居型商品房项目认购协议书且仍有效的,将不接受其此次认购申请。

上下滑动查看详情:
(三)认购资格核查结果公示
认购结束后,深圳市住房保障署将核查认购家庭认购资格,核查结果将在深圳市住房和建设局网站公示5个工作日。认购家庭如需放弃本次认购,应当在公示期内登录深圳市住房和建设局网站提交网上放弃认购申请或到深圳市住房保障署提交书面放弃认购申请,逾期不予受理。
(四)公布认购名单和选房排位
核查结果公示结束后,将按照1:2的比例确定入围和候补入围认购家庭名单。其中,A队列:排名1-290位的认购家庭作为入围认购家庭,排名291-580位的认购家庭作为候补入围认购家庭,581位及以后的认购家庭作为递补认购家庭;B队列:排名1-113位的认购家庭作为入围认购家庭,排名114-226位的认购家庭作为候补入围认购家庭,227位及以后的认购家庭作为递补认购家庭。
上述的入围名单、候补入围名单、递补名单以及选房排位将在深圳市住房和建设局网站予以公布。
(五)选房及签约
认购名单及选房排位公布后,入围和候补入围认购家庭即可登录深圳市住房和建设局网站,在线打印《选房通知书》。
入围和候补入围认购家庭须按《选房通知书》规定时间到指定地点选房,并按照选房排位顺序依次选择其所在选房队列对应的一套住房,对应房源选完即止。
入围和候补入围认购家庭选房结束后,如有剩余房源,将由递补名单中的认购家庭按照选房排位顺序依次递补选房,剩余房源选完即止,相关事宜请关注深圳市住房和建设局网站。
认购家庭选定房号后,应按规定当场交纳认购定金人民币2万元,并签订认购协议书。租住市本级保障性住房的认购家庭,在签订安居型商品房认购协议书的同时,需办理租住住房延期退房的相关手续。租住区级保障性住房的认购家庭,在签订安居型商品房认购协议书后,请及时咨询所在区的住房保障部门办理租住住房延期退房的相关手续。
认购家庭已选定住房但未在当日选房结束前签订认购协议书,或已签订认购协议书但在当日选房结束前书面声明放弃所选定住房的,均视为放弃本次选房。
上午场的认购家庭选定住房后,在当日下午场次开场前书面放弃所选住房,且当日下午场所属队列仍有待选房源的,其所放弃的住房纳入当日下午场待选房源。除上述情形外,若房源所属队列的住房在当日选房场次未全部被选定,认购家庭当日所放弃的住房纳入次日待选房源;若房源所属队列的住房在当场次全部被选定,认购家庭当日所放弃的住房由排在最后选定住房的认购家庭之后的认购家庭,在当日规定选房时间结束后,按照选房排位的先后顺序依次选房。
认购家庭应按照认购协议书的约定按时缴纳购房款并签订安居型商品房买卖合同。未在规定时间内签订买卖合同的,视为放弃本次认购房源。
(六)选房结果和剩余房源信息公布
选房期间,每日选房工作结束后,选房结果及剩余房源信息将于当日24:00前在深圳市住房和建设局网站予以公布。
若本次选房结束后仍有剩余房源,开发建设单位可向市住房保障主管部门申请收购,收购的房源由市住房保障主管部门统一管理和分配。

购买本住房可选择的付款方式有以下两种:
(1) 一次性付款:买受人应在《深圳市安居型商品房认购协议书》规定时间内一次性向出卖人付清全部房款。
(2)按揭付款:买受人应在签订《深圳市安居型商品房认购协议书》后,向住房公积金受托银行或出卖人合作按揭贷款银行申请办理按揭贷款手续,并在《深圳市安居型商品房认购协议书》规定时间内交清首期款。无法办理按揭贷款的,买受人应在知道或应当知道不能办理按揭贷款之日起,在《深圳市安居型商品房认购协议书》规定时间内,向出卖人一次性付清全部房款。

图源:摄图网-500332972
安居型商品房产权限制规定:
1.在取得完全产权之前,买受人享有有限产权,期间安居型商品房不得出租、出借、转让、赠予、抵押(认购本住房办理按揭贷款的抵押除外),不得用于经营性用途或改变使用功能。
2.自买卖合同签订之日起满10年的,买受人没有买卖合同约定的及相关政策法规规定的不受理取得住房完全产权申请的情况,并且没有相关政策法规规定的回购情况的,可按照届时的相关规定向市住房保障部门缴纳土地及房产增值收益等价款后,申请取得全部产权。
3.有关产权的其他事宜按国家及地方政府相关政策法规执行

图源:摄图网-500845400
这次的房源是你中意的吗
看中了就记得及时去提交申购申请哦
来源:深圳本地宝
大芬美术馆
大芬油画村文化发展中心
唯一官方公众号
- E N D -
欢迎转发至您的朋友圈


长按识别二维码可以关注我们

