建筑·设计|从废弃工厂到儿童乐园,建筑师的脑洞永远猜不透
2021-03-20 09:09 来源:深圳工务署
城乡接合部,作为城市化的空间载体,在时代背景中,容易沦为“被遗忘的角落”。不过在建筑师看来,越是不尽理想的限制条件,或许越能成为激发脑洞和创造力的“最佳主场”。

▲山角下的少年儿童活动中心@夏至
缘起
随着新型城镇规划的影响,北京城市更新由郊区逐渐蔓延到城乡结合处,密云区北庄镇原服装制造产业结构在乡村产业发展的要求下发生了变化。本项目的前身是一家建于20世纪90年代的服装制造厂,业主买下整个空置的厂区后,拟保留原有建筑物,并将其改造更新成以儿童科技馆为主,融合酒店、亲子教育、游学营地、商业等综合业态的少年儿童活动中心。

▲改造后的厂区重塑了小镇新的社区活力@夏至
从场地出发的规划
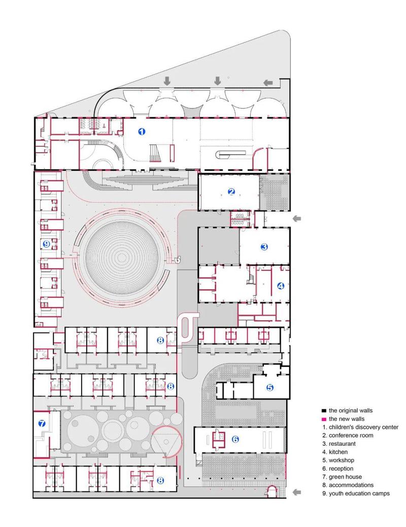
整个厂区主要分为南北两院,北院是以排架结构为主的单层单跨大厂房,曾经是服装厂区内最重要的生产车间。南院是砖承重墙木桁架屋面的小开间红砖房,原功能分别是库房、集体宿舍和食堂。
基于原始建筑尺度和结构特性,设计师把儿童科技馆、多功能厅和餐厅等需要大跨度空间的功能集中在北区;把酒店住宿功能集中在南区。

▲园区总平面图@夏至

▲园区功能平面图@REDe Architects+末广建筑
如何激活一个没有过多的历史故事和空间特色的工业遗存地?为了回应场地内不同限制条件和功能需求,设计师对十二个单体建筑均采用了不同的改造策略,将空间叙事体验的重点放在单体建筑之间以及整体建筑群与山体环境的关系上。
在大体量厂房与北方苍茫山脉间营造近人的尺度,通过置入步道、廊道、小广场和过庭等一系列空间构筑物,串联北院活动空间到南院住宿区的连续的立体景观体验,是密云服装厂改造项目最大的空间体验特色。

▲联系儿童营与观山露台的景观步道@夏至

▲园区改造前后对比分析图@REDe Architects+末广建筑
游戏式地景的改造策略
设计师希望把孩子当做形式的鉴赏家,于是采用抽象的几何构件进行场地内的景观设计,给孩子提供一个抽象的超现实场景,让他们随心所欲地诠释它,任意想象这些形状的可能性,去编织故事进行冒险,运用直觉创造出数不清的玩法。
现状北院为水泥砖硬质铺地,置入圆环坡道和钢格栅平台,联系西侧儿童营地与东侧餐厅屋顶露台,使得孩子们可以在不同标高奔跑玩耍,钢格栅平台同时为地面草坪活动提供了的半透明遮阳区,使空间呈现了戏剧性的整体感。
结合原始园区气质和建筑立面材质,通过回收红砖和水泥砖做硬质铺地主材,点缀以塑胶跑道,为儿童提供可以恣意跑跳的趣味空间。

▲北院前后对比照片@夏至

▲置入体@REDe Architects+末广建筑
类似正弦函数的斜柱拼成的几何图案代替了直立的柱子,圆环的双螺旋形体遵循精确的循环比例关系,空间的动、静体验随着运动交替着。
位于草坪中心的消防水池出口被设计成一个楔形的光学小亭子,将天空拼合在草坪里;建筑外立面均采用了几何色块与线条做装饰,目的是给孩子一个弹性的想象空间,让他们在空间里自己去探索与互动。

▲可以触碰到远山的半透明平台@夏至

▲天空从缝隙间漏出,期待夜晚的星空@夏至

▲模糊的空间边界,鼓励身体与空间的扩张与互动@夏至

▲连接天空与大地的跑道@夏至

▲枣树与延展的纽带@夏至

▲夜里,当结构变成手拉手的回旋舞@夏至

▲光束的动态韵律@夏至

▲动态的不平衡感@夏至

▲光束与远山@夏至
现状南院为柏油路硬质地面,设计师模仿野生植物高低交错成簇的生长肌理来打造南院花园。
在植物配置上选择北方常见的宿根花草,希望在自然的生长与衰败间,呈现生命动态的季相变化。孩子们在这里体验着自然最本的美,去观察植物们随风舞动的形态、迎着光的样子与凋敝时的优雅。

▲改造前厂区南院的野生状态@REDe Architects+末广建筑

▲改造后厂区南院鸟瞰@夏至

▲傍晚雨后的小院@李佳颖
南北院之间,项目根据现状的高差设计了一个流动的水景,在水景上插入了一个胶囊型过亭,连接着住宿区、餐厅院与北院——它是空间旋律的轻缓停顿。
周围建筑强烈的几何形态和单调的肌理,需要一个视觉上的“冷静区threshold zone”融入背景环境,过庭漂浮在水面之上,两面穿孔的金属板墙体在一定距离观看的时候会自然重叠出摩尔纹,使画面变得模糊不清,游离在视觉的感知之外,呈现出一种如面纱般微妙的动态效果。穿孔的金属板有时会让光线透过,带来清晰的视野;有时又会让光线发生折射和扭曲。

▲“缺席的物质”轻柔地“降落”在水面@李佳颖

▲被捕捉的光,半透明和全反射带来虚实相间的效果@夏至

▲连接着住宿区、餐厅院与北院的过亭@夏至

▲环境被朦胧的过滤@夏至

▲水院改造前后对比照片@夏至
北区儿童科技馆
现状场地最北侧的临时砖混建筑封闭采光差,不满足使用要求,于是被拆掉,置入了一列伞骨状单边悬挑结构的入口商业序厅。序厅室内由七个半圆形玻璃盒子相切而成,分别承担着科技馆主入口、咖啡休息区和衍生品概念店等功能,它们如同一个个连续的小聚落。
设计师将光学的透明、反射与折射等一些列现象转化成物理空间体验。连续的玻璃面反射了周围环境,使结构更加轻盈,将视觉扩展到其他维度。

▲儿童科技馆改造前后对比分析图@REDe Architects+末广建筑

▲街景在内与外间被触发@夏至

▲打开的伞(施工中)@朱雨蒙

▲空间的膨胀与收缩,风景被带远与拉近@夏至

▲折射的光就像是自身的发光,内与外之惑@夏至
通过重构展示空间与展品的关系探索儿童科技馆内部空间的潜力,设计师尝试营造游戏的无边界感,为0-7岁的儿童创造一个可以一起玩耍学习的混龄环境。
功能从动到静按楼层分区,孩子们在地面层做环形动线的肢体游戏活动;以景观楼梯为中心舞台,沿厂房纵向分别布置了钢坡道和弧形楼梯,充分利用了楼梯底部缝隙空间,结合滑梯创造出一个立体游戏区,自由路径激发各种运动的可能性。

▲儿童科技馆改造前后对比照片@夏至

▲结构的张力(施工中)@朱雨蒙

▲弧形楼梯与锥体滑梯组合成的幼儿游戏区@夏至

▲坡道与连廊划分的游戏区@REDe Architects+末广建筑
北区餐厅与多功能厅
场地东侧厂房紧邻乡村道路,多功能厅、餐饮和厨房等大空间房间布置在此。
为了解决原厂房进深过大采光不好和热工环境差的现状,平面布局上拆除了原始夹芯板屋面,修复加固仅5.4米高的原始墙体,采用钢结构体系加建二层空间。
两个厂房间嵌入了门厅和卫生间体块来分隔北院与外部道路,同时让北院的视线直接与远山联系。会议、餐饮二层空间顶设置了景观廊桥,钢格栅地面与金属绳网的栏杆暗示着其作为圆环步道的延续,将人的活动导向屋顶平台。

▲望向远山的多功能厅前院@夏至

▲从多功能厅前院回望主院,建筑边界剪出漫步之丘@夏至

▲原来的“内”与现在的“外”重叠在一个空间里@夏至

▲有光的“膨胀空间”与有影的“收缩空间”@夏至

▲在餐厅屋顶露台望向内院,新与旧的“平行”(施工中)@朱雨蒙

▲餐厅室内梁柱均采用绿色氟碳漆,反差色带来了轻松的气质@夏至

▲老墙与新结构的镶嵌关系@夏至
南区民宿接待厅
南区建筑群原结构体系是砖承重墙木桁架屋面,呈南北向布局,原始功能为集体宿舍和食堂,设计师利用原建筑结构与格局,增加上下水系统且提高房屋内热工新能,将其改造成民宿客房区。
废弃车棚的构造柱和钢料被改造成民宿主入口前廊,并保留了场地入口处原始龟裂的沥青地面。

▲庭院的阳光,穿过廊下,撒在草丛中@夏至
厂区内废弃的食堂改造成了酒店接待厅,保留了原建筑斑驳的绿油漆墙裙和清水混凝土预制板屋面,并且置入不锈钢材质的卫生储藏功能模块、清水混凝土吧台和不锈钢卡座。
精致做工与现状建筑内表面的斑驳肌理并置的设计策略,不但可以让新旧元素在保持真实性的前提下和谐共存,还互为作用产生了一种新的开放性和丰富性,无功能限定的“空”则是“空间的分割”。
极细的断桥钢窗户及门扇最大程度使光和景色能“流”入室内,也强化了洞口与墙体之间的比例关系。

▲进入接待室的前厅,新与旧的转换@夏至

▲清晨,被阳光唤醒的老墙@夏至

▲民宿接待厅改造前后对比照片@夏至

▲肋梁暗示着空间方向@夏至

▲天花板和墙壁都处于改造前最原始的状态@夏至

▲傍晚,从咖啡厅望向前廊@夏至
南区花房
南区主院尽端的小仓库重新建造成花房,功能分区分别是以壁炉为中心的半围合休息区和以会议桌为中心的开敞活动区。
主体结构梁的延伸将天空与庭院引入活动区,通过地坪抬高50公分增强活动区的场所感使其与南院形成微妙的视线关系。支撑屋顶的钢梁,一部分放置在小钢柱上,于是钢梁结构从砖承重墙上抬高了30公分。屋顶和墙之间的空隙,则尽可能以玻璃填充,呈现通透漂浮感。

▲花房改造前后对比照片@夏至

▲砖榻、地面、窗台三种高度的并置@夏至

▲非开放空间的形成从属于特定的墙体围合@夏至

▲一米见方的窗,联系着南院与休息区@夏至
南区民宿客房
为了契合场地内原有建筑的材质和尺度,采用清水砖墙分隔室内空间,每户之间的室外庭院院墙及铺地也采用清水红砖,红砖均是来自附近拆迁村落的回收老砖。从民宿主入口到客房区,利用矮墙、庭院和绿植,营造了一个松散又连续的户外体验路径,私密性和公共性被微妙的联系与区分。

▲内向的庭院,砖房子里的绿野@夏至

▲客房里保留着老屋面@夏至

▲新与旧的时间对话@夏至
结语
改造后的北京密云老服装厂容纳了设计师对孩子们日常成长的设想与期待。新空间的主角,是这里来往的人与家庭,他们与房子相互作用共同激活着新空间的生活潜力,这才是改造打动人的活力。多样开放的空间结构,让后续的使用拥有更多可能性,并伴随着时光而演变。

▲北区施工照片@李佳颖

▲北区施工照片@李佳颖

▲北院剖面设计@REDe Architects+末广建筑

▲花房剖面设计@REDe Architects+末广建筑

▲花房节点设计1@REDe Architects+末广建筑

▲花房节点设计2@REDe Architects+末广建筑

▲花房节点设计3@REDe Architects+末广建筑

▲花房节点设计4@REDe Architects+末广建筑

▲花房节点设计5@REDe Architects+末广建筑
项目信息
项目名称:少年儿童活动中心-北京服装厂改造项目
项目地点:中国北京密云北庄镇
项目类型:亲子度假、教育
业主:量子家(北京)文化发展有限公司
建筑面积:6300 平方米
场地面积:5400平方米
完工时间:2020年10月
设计时间:2019年4月
建筑公司:REDe Architects、末广建筑
主持建筑师:金雷 / REDe Architects;李佳颖、冯昕 / 末广建筑
项目建筑师:李佳颖、冯昕(建筑、室内方案 + 扩初)
景观设计:李佳颖、徐文凯
民宿室内软装设计:宋文涛、黄鑫伟
摄影:夏至、朱雨蒙、李佳颖

END

资料来源:末广建筑
本文由深圳市建筑工务署发布,转载请注明出处。
往期精选


再见土味审美,幼儿园终于不“辣眼睛”了

CNN评选全球绿色建筑,8个可持续建筑的案例

他们用一根根竹子,造出了最美竹建筑

这10座新博物馆,酷到全球闻名


